DostępneRemedium, Gdańsk
Apartament LU.1

Cena za m218 400 zł/m2 netto
2 987 976 zł netto3 675 210 zł brutto
Parametry lokalu
Metraż162.39 m2
Piętro0
Pomieszczenia1
Standard wykończenia-
Balkon / Ogródek-
StatusDostępne
Strona świataPołudniowa
Data odbioru-
Metraż162.39 m2
Piętro0
Pomieszczenia1
StatusDostępne
Strona świataPołudniowa
Opis lokalu usługowego
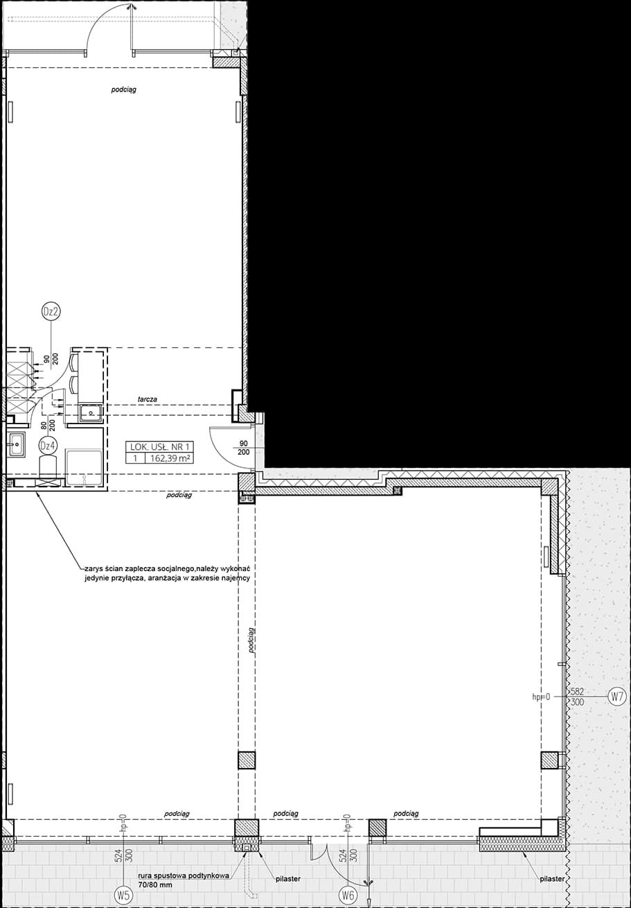
Lokal użytkowy 162,00 m² | Parter z witryną ok. 10 m | Sąsiedztwo GUMed, prywatnych placówek medycznych i kampusu Politechniki Gdańskiej
Przedmiotem oferty jest lokal usługowy o powierzchni 162,00 m², usytuowany na parterze nowoczesnego budynku przy ul. Smoluchowskiego w Gdańsku. Nieruchomość znajduje się w akademicko-medycznym klastrze miasta: w bezpośrednim sąsiedztwie Gdańskiego Uniwersytetu Medycznego (GUMed), licznych prywatnych placówek leczniczych oraz kampusu Politechniki Gdańskiej. Takie położenie generuje bardzo wysoki przepływ osób – studentów, kadry medycznej i naukowej, pacjentów, osób towarzyszących oraz użytkowników usług specjalistycznych.
Parametry i kluczowe cechy nieruchomości
Standard techniczny (stan deweloperski)
Przeznaczenie i możliwe funkcje
Elastyczna przestrzeń pozwala na adaptację pod:
Atuty lokalizacji - klaster akademicko-medyczny
Lokal łączy trzy kluczowe czynniki wzrostu wartości: widoczność (witryna >10 m), dostępność (parter, wejście z chodnika) oraz źródło stałego ruchu (klaster uczelniano-medyczny). To oferta atrakcyjna dla inwestorów poszukujących lokalu pod wynajem w segmencie usług medycznych, gastronomicznych lub edukacyjnych, jak również dla operatorów własnych konceptów w lokalizacji generującej powtarzalny popyt niezależnie od sezonu.
Zapraszamy do kontaktu w celu uzyskania szczegółowych informacji, dokumentacji technicznej oraz umówienia prezentacji lokalu.
Do ceny należy doliczyć podatek w wysokości 23% VAT (cena brutto 3 675 210 zł)
Przedmiotem oferty jest lokal usługowy o powierzchni 162,00 m², usytuowany na parterze nowoczesnego budynku przy ul. Smoluchowskiego w Gdańsku. Nieruchomość znajduje się w akademicko-medycznym klastrze miasta: w bezpośrednim sąsiedztwie Gdańskiego Uniwersytetu Medycznego (GUMed), licznych prywatnych placówek leczniczych oraz kampusu Politechniki Gdańskiej. Takie położenie generuje bardzo wysoki przepływ osób – studentów, kadry medycznej i naukowej, pacjentów, osób towarzyszących oraz użytkowników usług specjalistycznych.
Parametry i kluczowe cechy nieruchomości
- Powierzchnia użytkowa: 162,00 m²
- Witryna o długości ponad 10 m – doskonała ekspozycja i przestrzeń pod oznakowanie marki lub komunikację oferty.
- Wejście z poziomu chodnika – dostęp bez barier architektonicznych dla klientów i dostaw.
- Wysokość pomieszczeń, układ open space – pełna elastyczność aranżacyjna.
- Możliwość prowadzenia działalności gastronomicznej – doprowadzone instalacje, kanał wentylacyjny pod okap, opcja montażu separatora tłuszczu.
- Wentylacja ogólna i sanitarna + indywidualny kanał pod okap gastronomiczny.
- Grzejniki z termostatami; przygotowane króćce pod ciepło technologiczne.
- Rozdzielnia elektryczna; zasilania pod klimatyzację, szyld/reklamę, oświetlenie awaryjne.
- Przyłącza mediów: prąd, woda, kanalizacja, internet, RTV, telefon.
- Aluminiowe drzwi zewnętrzne.
- Wysokie pomieszczenia, dostęp do światła dziennego.
Przeznaczenie i możliwe funkcje
Elastyczna przestrzeń pozwala na adaptację pod:
- gastronomię (kawiarnia, piekarnia, koncept kulinarny),
- działalność medyczną lub pokrewną (gabinet, poradnia, punkt diagnostyczny),
- usługi specjalistyczne i beauty,
- showroom / retail niszowy,
- nowoczesne biuro lub punkt obsługi klienta.
Atuty lokalizacji - klaster akademicko-medyczny
- Bezpośrednie sąsiedztwo GUMed – stały napływ pacjentów i personelu.
- Bliskość prywatnych placówek leczniczych – komplementarne usługi, wysoka rotacja odwiedzających.
- Kampus Politechniki Gdańskiej – tysiące studentów i pracowników każdego dnia.
- Przystanki komunikacji miejskiej w zasięgu krótkiego dojścia.
- Okolica umiarkowanie zamieszkana – niski poziom lokalnej konkurencji przy wysokim zewnętrznym strumieniu użytkowników.
Lokal łączy trzy kluczowe czynniki wzrostu wartości: widoczność (witryna >10 m), dostępność (parter, wejście z chodnika) oraz źródło stałego ruchu (klaster uczelniano-medyczny). To oferta atrakcyjna dla inwestorów poszukujących lokalu pod wynajem w segmencie usług medycznych, gastronomicznych lub edukacyjnych, jak również dla operatorów własnych konceptów w lokalizacji generującej powtarzalny popyt niezależnie od sezonu.
Do ceny należy doliczyć podatek w wysokości 23% VAT (cena brutto 3 675 210 zł)
Link do oferty dewelopera: https://www.domesta.com.pl/remedium
Porozmawiajmy o Twoim nowym apartamencie
Gdańsk znamy jak własną kieszeń. Doradzimy, pokażemy, podpowiemy - wszystko w Twoim tempie.
W biurze, online lub przez telefon – doradzimy, pokażemy, podpowiemy.

Inwestycja „Remedium” nie jest objęta obowiązkiem publikacji informacji wynikającym z przepisów Ustawy z dnia 21 maja 2025 r. o zmianie ustawy o ochronie praw nabywcy lokalu mieszkalnego lub domu jednorodzinnego oraz Deweloperskim Funduszu Gwarancyjnym (Dz.U. z 2025 r. poz.758). Obowiązki dotyczące publikacji danych o cenie i stanie sprzedaży lokali, o których mowa w nowelizacji, nie mają zastosowania do niniejszej inwestycji.
Zapytaj o lokal usługowy
Biuro sprzedaży
*Każde biuro sprzedaży obsługuje wszystkie inwestycje