ul. Starogardzka/Borkowska przy rondzie, Gdańsk
Poniedziałek - Piątek: 09:00 - 17:00
tel. 58 670 45 16
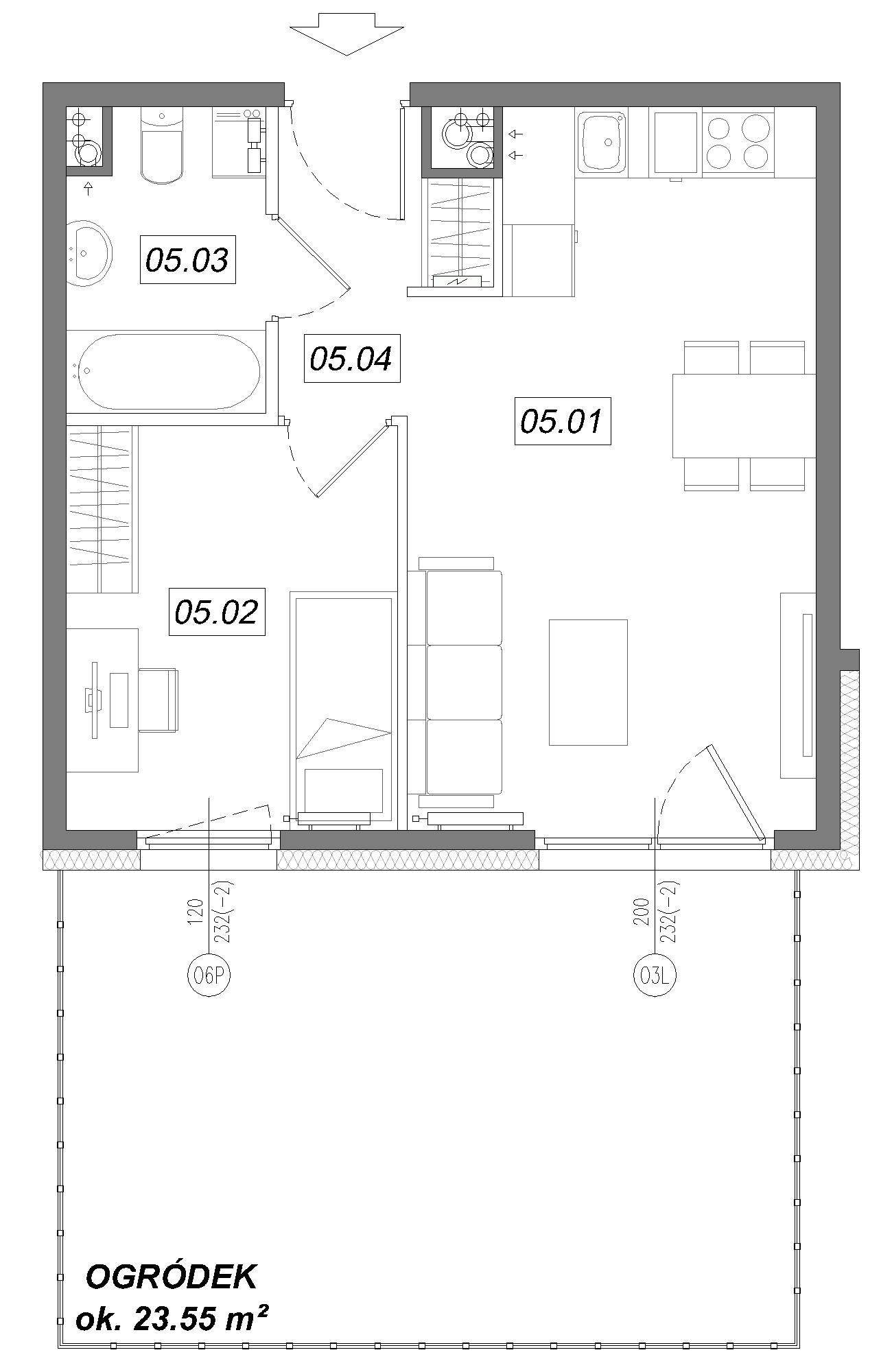
36.20m² Metraż
2 Pokoje
dostępne
| Nr oferty: | 6.A.05 |
| Piętro: | Parter |
| Cena za 1 m²: | 12 818 zł |
| Odbiór od: | 2026-11-16 |
| Cechy: |
Dokumenty do pobrania:
36.20m² Metraż
2 Pokoje
dostępne
| Nr oferty: | 6.A.05 |
| Piętro: | Parter |
| Cena za 1 m²: | 12 818 zł |
| Odbiór od: | 2026-11-16 |
| Cechy: |


